Wat uit het verzoekschrift van de advocaat van Von Gahlen bleek, dat zij mij afschilderden als een zeer lastige en vervelende werknemer en het gerechtvaardigd vonden mij op staande voet te ontslaan wegens werkweigering. Bovendien bleek uit onderzoek naar de luchtkwaliteit op de tekenkamer, dat de luchtkwaliteit goed genoeg was om in te werken, maar wel verbeterd diende te worden. Om deze stelling te bewijzen, werd het onderzoek aangevoerd, dat was uitgevoerd door André Winkes van de Arbo Unie Vestiging Arnhem. Hieronder heb ik de tekst en de schets van de plattegrond weergegeven, zoals deze door André Winkes in zijn verslag waren vastgelegd.
14 november 2007
Notitie werkplekbezoek kantoor Von Gahlen Nederland BV
Inleiding
Op verzoek van de heer J. Duiker is op 6 november 2007 een werkplekonderzoek uitgevoerd op het kantoor. Aanleiding voor het bezoek was de vraag of de huidige ventilatie voldoende is en of er gevaar is voor schade aan de gezondheid.
Methode
Met behulp van de Q track klimaatmeter is de concentratie van kooldioxide gemeten. De meting heeft plaatsgevonden aan het einde van de werkdag om een zogenaamd worst case scenario na te bootsen. De meting heeft plaatsgevonden op een aantal plaatsen in de ruimte. Tijdens de metingen was het kantoor volledig bezet. Zoals gebruikelijk waren de drie deuren naar belendende ruimtes geopend.

In de voorgaande schematische tekening zijn de waardes zoals ze gemeten zijn ingetekend.
Conclusies en aanbevelingen
De kooldioxide concentratie in een ruimte kan gebruikt worden als maat voor de kwaliteit van de ventilatie. Sterk verhoogde concentraties geven aan dat de ventilatie onvoldoende is.
Arbo Informatieblad nummer 7, ‘Kantoren’, geeft voor CO2 concentraties in kantoorruimtes de volgende richtlijnen:
- Een redelijke kwaliteit binnenlucht bevat minder dan 0,1% (1000 PPM) kooldioxide;
- Als maximale grenswaarde wordt 0,12% (1200 PPM) gehanteerd;
- Zeer incidenteel is 0,15% (1500 PPM) tijdelijk toelaatbaar.
Uit andere bronnen wordt er aangegeven dat er boven de 700 PPM incidenteel klachten kunnen ontstaan over geur en bedompte lucht. Deze klachten zijn niet schadelijk voor de gezondheid.
Als gekeken wordt naar de resultaten die op het kantoor bij Von Gahlen in een worst case scenario op het einde van de dag gemeten zijn, valt het volgende op.
De waarde van 700 PPM wordt in het deel van het kantoor dat het verst van de deuren afzit overschreden en op de plaatsen die het dichtst bij de deur zitten benaderd.
De waarde van 1000 PPM wordt nergens gehaald, maar op een plaats benaderd.
Het beeld dat bij deze waarnemingen ontstaat is dat de ventilatie in de ruimte niet optimaal is en dat maatregelen gewenst zijn om het werkcomfort te verbeteren. Men is hier overigens al druk mee bezig.
Op basis van de huidige meetresultaten is er geen enkele indicatie dat de kwaliteit van de lucht op het kantoor schadelijk is voor de gezondheid. De maximale waarde van 1200 PPM wordt zelfs in een worst case scenario niet benaderd.
Nadat ik het onderzoek had doorgenomen, was ik zeer verbaasd over zowel de kwaliteit van het onderzoek als de kwaliteit van de rapportage, dat door deze zogenaamde gecertificeerde arbeidshygiënist was uitgevoerd. In mijn verweerschrift had ik dit rapport (notitie werkplekbezoek kantoor) uitvoerig besproken en wil u hieronder graag een samenvatting geven van mijn bevindingen.
Wanneer dit rapport goed wordt gelezen, is duidelijk de subjectieve mening en indoctrinatie van Von Gahlen terug te vinden. Dit is ook niet verwonderlijk, daar Von Gahlen een vaste klant was van de Arbo Unie. Ook blinkt de rapportage uit in onvolledigheid. Om deze redenen had ik dan ook per e-mail zes vragen gesteld aan André Winkes. Voordat ik de zes vragen aan de André Winkes stelde, legde ik hem in dezelfde e-mail eerst uit wat mijn situatie was:
Geachte heer Winkes,
Kunt u mij A.U.B. enkele vragen beantwoorden naar aanleiding van een door u uitgevoerd werkplekonderzoek bij Von Gahlen BV te Zevenaar op 6 november 2007?
Ik was werknemer bij Von Gahlen tot ik op 12 november 2007 op staande voet ben ontslagen, daar ik niet meer in de ruimte wilde werken die door u is onderzocht; de laatste tijd kreeg ik in de loop van de ochtend last van hoofdpijn. Blijkbaar is Von Gahlen achteraf niet zo zeker van de rechtmatigheid van dit ontslag op staande voet, want zij hebben de zaak voorgelegd aan het Kantongerecht te Arnhem, waar de zaak voorkomt op 8 januari 2008.
Op de dag dat de metingen zijn verricht, was ik niet bij Von Gahlen aanwezig. Ik heb van collega’s gehoord dat er o.a. metingen op werkplekken zijn verricht, zonder dat daarbij iemand op betreffende werkplek aan het werk was. Tevens wist een collega mij te vertellen, dat de kooldioxide concentraties sterk omhoog gingen op het moment dat iemand op deze werkplek ging zitten.
Kunt u mij A.U.B. onderstaande vragen beantwoorden?
Mijn vragen en antwoorden van André Winkes wil ik hieronder graag met u delen, waarbij ik vervolgens gelijk commentaar geef:
Vraag 1:
U schrijft dat tijdens de metingen het kantoor volledig bezet was. Hoe komt u aan deze informatie?
De heer Winkes gaf als antwoord op deze vraag:
“Tijdens de meting was het merendeel van de werkplekken normaal bezet. Dit betekent dat er dan een betrouwbaar beeld is van de kooldioxide concentratie.”
André Winkes kwam hier dus terug op zijn eerdere uitspraak, dat het kantoor volledig bezet was. Hieruit blijkt al meteen dat André Winkes zijn rapport niet zorgvuldig had opgesteld. Bovendien beweerde hij in het antwoord op mijn vraag, dat er toch een betrouwbaar beeld was van de kooldioxide concentratie. Indien dit het geval was, waarom had hij het dan in zijn rapportage zo nadrukkelijk over een “worst case scenario” (ongunstigste uitgangspunt) vanwege de volledige bezetting, om vervolgens bij het beantwoorden van mijn vragen te schrijven, dat het merendeel van de werkplekken bezet was om een betrouwbaar beeld te krijgen?
Overigens had André Winkes geen antwoord gegeven op mijn eerste vraag!
Vraag 2:
U schrijft dat zoals gebruikelijk de drie deuren naar de belendende ruimtes geopend waren. Naar mijn weten komen slechts twee deuren hiervoor in aanmerking. Op deze twee deuren zijn deurdrangers gemonteerd. Ik heb tegen de directie moeten strijden om deze deuren iedere dag open te mogen zetten. Blijkbaar heeft iemand u verteld dat drie deuren “gebruikelijk” waren geopend.
Over welke drie deuren heeft u het hier? Deze deuren staan niet aangegeven op de plattegrond.
André Winkes gaf als antwoord:
Tijdens de meting waren beide deuren naar de zijruimte en een deur naar de gang geopend. Vandaar de “drie deuren”.
Hierbij volgt mijn toelichting op bovenstaande bewering, dat volgens de “Notitie werkplekbezoek kantoor” drie deuren “zoals gebruikelijk” waren geopend. Het vreemde was, dat dit helemaal niet het geval kon zijn. Op alle drie de deuren, die hiervoor in aanmerking kwamen, had de directie deurdrangers laten monteren, met natuurlijk de bedoeling deze dan na opening direct weer te laten sluiten. Ik had ervoor moeten strijden om twee deuren open te mogen laten staan om nog voor wat “ventilatie” te zorgen. Het hilarische was, dat ik dit nog kon aantonen ook, omdat ik Theo een keer voor de grap had verteld, dat ik hem zijn nek zou omdraaien indien hij de deuren weer dicht zou doen. Dit deed hij braaf in opdracht van de directie. Dit “dreigement” had de advocaat aangehaald in zijn verzoekschrift om aan te geven wat voor een verschrikkelijke werknemer ik was. Ik kon met deze opmerking van de advocaat aantonen, dat het niet gebruikelijk was dat deze deuren open stonden. Overigens zaten er vijf deuren in de tekenkamer! Ik probeerde dan ook twee deuren tegenover elkaar open te houden en die derde deur werd na openen door de deurdranger weer gesloten. De praktijk was, dat er meestal maar één deur was geopend. Deze deur was relatief dichtbij, zodat ik hier direct invloed op kon uitoefenen. De andere deuren waren voor mij te ver weg.
Vraag 3:
Wilt u mij vertellen wie u heeft verteld dat deze drie deuren gebruikelijk waren geopend?
André Winkes gaf als antwoord op deze vraag:
Er is mij door medewerkers verteld dat de deuren de laatste tijd geopend waren. Ik weet niet meer wie dit verteld hebben. Overigens is er tijdens de meting sprake van een zogenaamd worst case scenario (omdat de meting aan het eind van de werkdag heeft plaatsgevonden, zodat de opbouw van kooldioxide maximaal is).
Het is interessant om te vernemen, dat de deuren “de laatste tijd” geopend waren. Dit was dan sinds ik niet meer op mijn werkplek was verschenen! Blijkbaar nam “de laatste tijd” de directie zelf het initiatief om de deuren geopend te houden, waardoor de luchtkwaliteit op de tekenkamer beter was dan in de periode dat ik er mijn werk deed. Ook mag het duidelijk zijn dat bij een “worst case scenario” alle deuren gesloten hadden moeten zijn! De deuren waren immers niet voor niets in het bouwkundige plan opgenomen! Als de alarmbellen bij de André Winkes nog niet waren afgegaan, dan zou dat nu het geval moeten zijn geweest, daar ik bij vraag 2 reeds had aangegeven, dat ik moest strijden om deuren open te kunnen houden op de tekenkamer.
Vraag 4:
Wanneer er in een ruimte een slechte luchtcirculatie is, is dit te herkennen aan dat de kooldioxide meting plaatselijk sterk omhoog gaat, indien iemand in de buurt van de meetapparatuur komt, omdat de betreffende persoon dan in zijn eigen “gaswolk” aan het ademen is. (Ik heb het dan nog niet eens over de ventilatie.) Mijn (ex) collegae hebben dit fenomeen op de tekenkamer zelf geconstateerd.
Waarom heeft u in de rapportage nergens vermeld, dat er metingen op werkplekken zijn verricht, waarbij niemand op deze werkplek aanwezig was ten tijde van het meten?
André Winkes gaf als antwoord op deze vraag:
Kooldioxide die uitgeademd wordt mengt zich in een ruimte waar mensen aanwezig zijn snel homogeen in de lucht. Daarom wordt een ruimte ook altijd beoordeeld op het gemiddelde beeld van de kooldioxide concentratie in de betreffende ruimte. Daar er gemeten wordt met snel reagerende meetapparatuur is het vanzelfsprekend dat als je direct in de buurt van een persoon meet de meetapparatuur reageert op de uitblaaslucht van de betrokken persoon. Dit is echter niet de kooldioxide concentratie in de ruimte die van belang is voor de beoordeling van de ventilatie. In dit kader is het ook niet van belang om te meten op een plek waar iemand zit, maar wordt er op een aantal plaatsen in het vertrek gemeten om een beeld te krijgen van de concentratie in de ruimte.
De laagst gemeten waarde in de ruimte was 625 ppm (ppm = parts per million) en de hoogst gemeten waarde in de ruimte was 950 ppm. De waarde 950 ppm is meer dan anderhalf maal hoger dan 625 ppm! Wanneer vervolgens door André Winkes een ruimte wordt beoordeeld op het gemiddelde beeld van de kooldioxide concentratie, dan heb ik medelijden met de persoon die op de plaats van de gemeten waarde van 950 ppm zijn werkplek had. Toevallig was dat mijn werkplek! Ook beweerde hij dat de uitgeademde lucht snel homogeen in de lucht mengde, terwijl hij even later beweerde dat de meetapparatuur snel reageerde als je direct in de buurt komt. André Winkes spreekt hier zichzelf min of meer tegen. In ieder geval bleef André Winkes in gebreke door niet uit te leggen hoe ver de meetapparatuur dan verwijderd diende te zijn van een werknemer om eerlijke gemeten waarden te krijgen. Het mag duidelijk zijn dat de hoogst gemeten waarde op mijn werkplek veel hoger zou zijn, indien er iemand op die plek aan het werk was geweest.
Mijn vraag 5 was al door de heer Winkes bij vraag 4 beantwoord.
Vraag 6:
Waarom heeft u niets over de weersomstandigheden buiten vermeld, ten tijde van de metingen?
De heer Winkes gaf als antwoord op deze vraag:
Extreme weersomstandigheden kunnen van invloed zijn op de natuurlijke ventilatie van een gebouw. Tijdens de metingen was hier echter geen sprake van.
Volgens mij hebben de meeste mensen de ervaring met tochten in een woonhuis, dat dit tochten van buitenaf meer wordt, naarmate het buiten harder waait. Dat het in een ruimte dus alleen tocht, wanneer er extreme weersomstandigheden zijn, is dus pure onzin. Op de tekenkamer gold dan ook: des te harder het buiten waaide, des te meer frisse lucht aanwezig was.
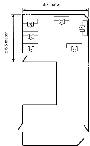
Dat het rapport van André Winkes uitblinkt in onvolledigheid, valt pas op wanneer de rapportage kritisch wordt bekeken door iemand die een brein heeft met technisch inzicht. Toevallig heb ik technisch inzicht! Ten eerste wil ik dan ook opmerkingen plaatsen aan de hand van de plattegrond dat de heer Winkes had geschetst. Deze schets geeft een andere vorm van het vloeroppervlak van de tekenkamer, dan de werkelijke vorm. Bovendien mis ik afmetingen in de schets, zodat men niet kan zien hoe groot de ruimte is. Verder wordt ook niet aangegeven waar de werkplekken zich bevinden, waar de deuren in de muren zitten, waar de twee ventilatieroosters zitten en hoe de ruimte verwarmd of gekoeld wordt. Ik heb zelf een schets van de plattegrond van de tekenkamer gemaakt, zoals deze er uit zag op het moment dat ik klachten kreeg. Alleen in het bovenste gedeelte op de plattegrond heb ik de werkplekken aangegeven.

In het gedeelte van de tekenkamer waar mijn werkplek was, heb ik twee maten aangegeven. Deze maten zijn schattingen van mij, maar het blijkt dat dit vierkante gedeelte een flinke ruimte was met een vloeroppervlak van ongeveer 45 vierkante meter. Er waren dan uiteindelijk zes werkplekken ingericht. Desondanks dat er zes werkplekken bevonden, waren in het rapport slechts twee gemeten waarden terug te vinden. Zou het niet logisch zijn geweest om bij al deze zes werkplekken de luchtkwaliteit te meten? De luchtkwaliteit op mijn werkplek was immers het punt van discussie en bovendien had ik aangegeven, dat de omstandigheden op de werkplekken verschillend waren!
Onder welke omstandigheden zijn deze twee (en andere) waarden gemeten? Waar André Winkes de waarde van 884 ppm heeft gemeten, wordt nu een interessante vraag. Op mijn plattegrond is te zien, dat hier zich drie werkplekken bevinden, een groot ventilatierooster en een deur die open stond naar een goed geventileerde ruimte. Het maakt dus nogal uit waar de meetapparatuur heeft gestaan, maar dat is op de plattegrond van het rapport niet duidelijk terug te vinden. André Winkes had in ieder geval geen metingen verricht op één van de drie werkplekken, terwijl daar mensen aan het werk waren. Dit had een van mijn collega’s mij telefonisch verteld en André Winkes had dit zelf in zijn antwoorden aangegeven. Bovendien zou dat zou volgens André Winkes immers een verkeerd beeld geven van de meting. Dan blijven de volgende mogelijkheden over waarmee de waarde 884 ppm tot stand is gekomen: voor de openstaande deur, voor het grote ventilatierooster of op een werkplek, terwijl niemand daar aanwezig was. Zijn dit eerlijke metingen? Natuurlijk niet!
Nu wil het toeval, dat de waarde van 950 ppm werd gemeten op mijn werkplek, waar niemand die dag aan het werk was! Toch was dit de hoogst gemeten waarde op de tekenkamer. Wanneer iemand objectief onderzoek zou doen naar de luchtkwaliteit op de tekenkamer, dan zou er bij deze hoge meetwaarde een alarmbel moeten gaan rinkelen. Was dit dan ook de hoogste waarde kooldioxide op de tekenkamer? Natuurlijk niet! De hoogste waarde op de tekenkamer zou gezocht moeten worden op een bezette werkplek! Helaas durfde André Winkes hier geen meetresultaten van te geven, want de werknemers mochten niet in de buurt van de meetapparatuur komen. Ook al was bij het verrichten van de metingen vals spel gespeeld, toch was het duidelijk dat op mijn werkplek de slechtste luchtkwaliteit van de tekenkamer was.
Op de schematische voorstelling, die de plattegrond van de tekenkamer moet voorstellen, had André Winkes links bovenaan de waarde 884 ppm gemeten en rechts bovenaan 950 ppm. De horizontale afstand tussen deze twee gemeten waarden zou wellicht 6 meter kunnen bedragen. Op deze horizontale lijn bevonden zich 3 werkplekken! Als helemaal rechts op deze horizontale lijn de hoogste concentratie van 950 ppm was gemeten (zonder dat daar iemand aanwezig was) en helemaal links op deze lijn een concentratie van 884 ppm, wat zou er dan gemeten worden in het midden van deze vierkante ruimte in de buurt van de bezette werkplek? In de buurt van deze bezette werkplek zou de gemeten concentratie hoger moeten zijn geweest dan 950 ppm! Wat zou er dan gebeuren met de gemeten concentratie als er wel iemand op mijn werkplek aan het werk was geweest? Deze zou aanzienlijk hoger zijn uitgevallen en zonder twijfel boven de waarde uitkomen, waarbij gezondheidsklachten konden optreden.
Wanneer was het nu echt een “worst case scenario” op de tekenkamer? De situatie was het slechtst, wanneer alle werknemers van de tekenkamer die dag aanwezig waren, wanneer de werknemers veel op hun eigen plek aan het werk waren en wanneer het regende. Wanneer het regende, dan verlieten de meeste werknemers in de pauze niet de tekenkamer en bovendien kwam er tijdens de pauzes nog kantoorpersoneel op de tekenkamer bij! Gezellig! Verder was het ongunstig voor het binnenklimaat, wanneer het buiten windstil was en wanneer de temperatuur buiten zodanig was, dat in de middag het gebouw zover was opgewarmd, dat de verwarming uit ging en hierdoor de luchtcirculatie minimaal werd. Ter informatie: indien het buiten warmer was, zorgde het aanzetten van de “airco” er voor dat de lucht werd gecirculeerd. Luchtcirculatie houdt in dat de lucht in een ruimte wordt gemengd. André Winkes vermelde niets over het aan of uit zijn van de verwarming met behulp van radiatoren/convectoren of de “airco” (luchtkoeling). Voor het “worst case scenario” waren de metingen immers verricht aan het einde van de werkdag. Oh ja, natuurlijk waren in een “worst case scenario” de deuren op de tekenkamer ook gesloten!
Ik zal voor u hieronder de tekortkomingen van het door André Winkes opgestelde rapport samenvatten:
- De metingen waren volgens de André Winkes verricht in een “worst case scenario”, maar de bezetting bleek niet volledig te zijn en bovendien stonden er drie deuren open, die niet open stonden toen ik nog werkte op de tekenkamer. Van een “worst case scenario” was dus geen sprake.
- Het meetrapport vermeldde niet of de luchtkoeling of de verwarming aan stond, dat van invloed was op het mengen van de lucht.
- Er was niet gemeten op bezette werkplekken, terwijl op deze plekken de lucht werd vervuild en ingeademd.
- In het probleemgebied van de tekenkamer waren te weinig metingen verricht om een helder beeld te geven.
- In het probleemgebied van de tekenkamer was op posities gemeten, waar de waarden relatief laag uit zouden vallen.
- De plattegrond gaf te weinig informatie over de situatie op de tekenkamer.
- Ik was niet betrokken bij het onderzoek, terwijl ik diegene was die gezondheidsklachten had.
Bovenstaande punten tonen aan dat het door André Winkes opgestelde rapport rammelde aan alle kanten. Bovendien was het belangrijkste punt niet vermeld in het rapport: op welke wijze op de tekenkamer de luchtverversing / mechanische ventilatie was geregeld! Het antwoord was simpel, daar deze niet aanwezig was! Niet alleen ontbrak de mechanische ventilatie (met een motor), maar tevens konden de ramen niet meer worden open gezet. Volgens de wet (het bouwbesluit) is de hoeveelheid mechanische ventilatie in een kantoorruimte in eerste instantie bepalend of een kantoorruimte voldoet aan de wettelijk gestelde normen ten aanzien van de ventilatie of niet. Metingen worden alleen interessant als er problemen zijn en/of om een beeld te krijgen van de luchtcirculatie en zijn daarom geen wettig middel om aan te tonen dat de ventilatie in een ruimte voldoet, eventueel aan (andere) wettelijke normen. Juridisch gezien was het meetrapport incompleet en ontbrak tevens de wettelijke gronden waarmee Von Gahlen mij kon dwingen mijn eigen werk te doen!
Het onderzoek van de André Winkes gaf dus geen realistisch beeld van de ventilatie op de tekenkamer. Omdat ik André Winkes per email van mijn situatie op de hoogte had gesteld, was hij volledig ingelicht over de ernst van de situatie en wist hij wat er op het spel stond. De arbeidsrelatie was inmiddels onherstelbaar verstoord en het rapport van André Winkes had invloed op de hoogte van de schadevergoeding, die ongetwijfeld door Von Gahlen aan mij zou moeten worden betaald. Von Gahlen had zich als een uitermate slecht werkgever gedragen en viel bovendien ernstige nalatigheid te verwijten.
Nadat André Winkes mijn email met vragen had ontvangen en volledig op de hoogte was van de situatie, had hij ervoor gekozen zijn rapport te verdedigen. Dit maakt dat André Winkes verre van integer is en een corrupte medewerker is van de Arbo Unie. De Arbo Unie is dan ook een corrupte club! U leest het goed! Ik hoop dat u dit artikel deelt met heel veel mensen! Dat de Arbo Unie een corrupte club is, wordt nog eens bevestigd, daar de bedrijfsarts Cees Everaert van de Arbo Unie) mij geschikt had bevonden voor mijn eigen werk, voordat de uitkomst van het onderzoek van André Winkes bekend was. Als Cees Everaert integer was geweest, dan had hij het onderzoek van André Winkes afgewacht en pas daarop zijn beslissing genomen. Ook had Cees Everaert erop moeten toezien dat ik zou worden ingelicht over het onderzoek naar de luchtkwaliteit op de tekenkamer dat door de Arbo Unie zou worden gaan uitgevoerd. Natuurlijk is dit niet gebeurd, want de Arbo Unie had zich ervoor laten lenen Von Gahlen te helpen om mij op een goedkope manier weg te werken. Om deze reden had Cees Everaert mijn arbeidsconflict ontkend en mij onbeschermd teruggestuurd naar een werkgever die zich vreselijk jegens mij misdroeg en aan alle kanten de boel belazerde.
Terug naar het UWV. Nadat mijn eerste verzoek om een deskundigenoordeel door het UWV was afgewezen, kreeg ik eind november 2007 een brief, waarin ik werd verzocht om op 6 december 2007 te verschijnen op het spreekuur van de verzekeringsarts van het UWV te Arnhem, mw. B. Frenay van Maasdam. Dit deskundigenoordeel kostte mij vijftig euro en de belastingbetaler nog veel meer, maar dat had ik er wel voor over.
Die ochtend werd ik door mevrouw Frenay van Maasdam ontvangen op haar kantoor. Het was een ruim kantoor met goede ventilatie. Bovendien kon zij volgens mij ook nog eens een raam open zetten. Voordat ze mij verder te woord stond, ging ze eerst uitgebreid telefoneren. Zodoende had ik de tijd om wat om mij heen te kijken en zag dat haar kantoor vol hing met kindertekeningen. Na verloop van tijd was zij klaar met telefoneren en begon het gesprek. Ik mocht beginnen, maar na een paar zinnen werd ik al door haar in de rede gevallen. Ze vroeg zich met een sarcastische grijns op haar gezicht af hoe het toch kon dat iemand met zo’n eenvoudige baan in zo’n mooie buurt woonde. Daarna vroeg zij aan mij of ik in het verleden wel eens psychische problemen had gehad. Wat deed dit er allemaal toe? Het gaat toch om mijn hoofdpijnproblemen op de tekenkamer? Of ik een kindermoordenaar, een dief, een homofiel, een gestoorde psychopaat, een oversekste president van de Verenigde Staten of wat dan ook was deed er naar mijn idee niet toe. Ook niet waar ik woonde. Mijn verre verleden deed er ook niet toe. Ik antwoordde dan ook wat zij wilde horen:
“Oh ja… Ik ben vroeger zwaar geflipt geweest en had meerdere psychiaters bezocht.”
Ik zag een mega grijns door haar sarcastische lach op haar gezicht verschijnen. Ze zou ongetwijfeld van zichzelf op dat moment gedacht hebben hoe slim zij wel niet was en wat voor een probleemmaker zij op dat moment voor zich had zitten én had herkend. Ik wilde weer terug naar het onderwerp van mijn bezoek en wilde haar de rapportage naar de luchtkwaliteit op de tekenkamer overhandigen, zodat ik haar het een en ander kon uitleggen. Ik reikte haar hierbij over het bureau de rapportage aan, maar zij verroerde geen vin en bleef mij strak aankijken met een grote grijns op haar gezicht. Wat was dit voor een idioot mens? Was dit nou de procedure die hoorde bij het objectieve deskundigenoordeel dat ik had aangevraagd? Ik legde de rapportage op mijn schoot en wachtte af wat zij weer zou gaan zeggen. Ze ging door met mij verder af te zeiken. Het was duidelijk dat zij haar mening al voor mijn bezoek had gevormd en dat zij niet open stond voor andere inzichten. Een opmerking van haar kan ik nog herinneren:
“Als je hoofdpijn krijgt, moet je gewoon een pilletje nemen.”
Hierop antwoordde ik:
“Ik ben benieuwd of u dat ook in uw verslag gaat zetten.”
Wanneer ik het telefoongesprek niet meereken, duurde het zogenaamde onderzoek van mevrouw Frenay van Maasdam slechts enkele minuten. De uitkomst van het onderzoek had zij mij niet verteld. Even later zat ik weer op de fiets naar huis.
Een paar dagen later kreeg ik de rapportage van mevrouw Frenay van Maasdam in mijn brievenbus. Het bleek dat zij mij gewoon geschikt achtte om mijn functie uit te oefenen. Dit vond ik op zich een begrijpelijke bevinding gezien de wijze waarop zij haar onderzoek had uitgevoerd, maar hieronder citeer ik een stuk uit mijn dossier dat hoorde bij dit zogenaamde onafhankelijke deskundigenoordeel. (De afkorting blh staat voor: belanghebbende)
Blh viel uit met klachten van hoofdpijn, niet ernstig van aard, die blh wijt aan de slechte ventilatiemogelijkheden op kantoor. Thuis heeft hij deze klachten niet, heeft hij ze ook nooit gehad. Blh wil er geen paracetamol of een andere pijnstiller voor nemen, ook al meldt hij zich in de loop van de dag suf te voelen, het concentreren zou minder zijn door de hoofdpijn. Ongeacht de oorzaak van de hoofdpijn, is de claim van blh: ziek door hoofdpijn voor zijn eigen werk m.i niet terecht: de door blh geuite hoofdpijnklachten kunnen wel zeer bestreden worden met een eenvoudige pijnstiller, blh wil dit niet omdat hij meent dat de oorzaak aangepakt moet worden. Desaturatie is niet aangetoond, noch waarschijnlijk: de claim dat de hoofdpijn komt door de ventilatieproblemen lijkt hierdoor ook niet reëel. Mogelijk spelen – zoals zo vaak bij hoofdpijn – psychogene factoren een rol. Blh staat hier echter niet voor open. Inmiddels is er sprake van een situatie waarbij werkgever en werknemer niet meer “on speaking terms” zijn.
Mevrouw Frenay van Maasdam had in haar rapportage geschreven dat desaturatie niet was aangetoond. Dit betekende dat volgens haar mijn hoofdpijn niet aan de luchtkwaliteit kon liggen. Een relevante vraag was, hoe zij aan deze informatie kwam! In de door mevrouw Frenay van Maasdam opgestelde rapportage was deze informatie nergens te vinden. Ik heb tevens de beschikking over mijn medisch dossier van het UWV en daarin is ook niet te vinden hoe mevrouw Frenay van Maasdam aan deze informatie was gekomen! Voorts had mevrouw Frenay van Maasdam geschreven:
“Mogelijk spelen – zoals zo vaak bij hoofdpijn – psychogene factoren een rol.”
Hoe kwam zij hierbij? Bovendien had mevrouw Frenay van Maasdam niets aangetoond en derhalve het woord “mogelijk” gebruikt. Verder had zij geschreven:
“Inmiddels is er sprake van een situatie waarbij werkgever en werknemer niet meer “on speaking terms” zijn.”
Bovenstaand citaat sloeg nergens op, daar ik ten tijde van het gesprek met mevrouw Frenay van Maasdam op 6 december 2007 geen werknemer meer was bij Von Gahlen, daar ik reeds per 12 november 2007 op staande voet was ontslagen. Er rammelde nog veel meer aan de door mevrouw Frenay van Maasdam opgestelde rapportage, dat helemaal niets weg had van een eerlijk, integer en deskundig onderzoek. Bovendien had mevrouw Frenay van Maasdam de richtlijn “Medisch arbeidsongeschiktheidscriterium” uit 1996 op essentiële punten aan haar laars gelapt. Meer hierover kunt u in een nog te schrijven reeks artikelen lezen. Ik kan u vast verklappen dat het Tuchtcollege voor de Gezondheidszorg zich in de nabije toekomst mag buigen over het “handelen” van mevrouw Frenay van Maasdam.
